Pfeil zurück zur Übersicht

Arbeitsplatz Dach, sicher für alle

Das kollektive Arbeitsschutzgeländer Fallnet® ASG – DEKRA geprüft und zertifiziert
Kollektivschutz: mit dem Arbeitsschutzgeländer Fallnet® ASG ist der Arbeitsplatz Dach für alle sicher, ob Pflege der Dachbegrünung oder Wartung von technischen Anlagen.
Kollektivschutz: mit dem Arbeitsschutzgeländer Fallnet® ASG ist der Arbeitsplatz Dach für alle sicher, ob Pflege der Dachbegrünung oder Wartung von technischen Anlagen.

(pressebox) (Nürtingen, 05.12.2019) Das kollektive Arbeitsschutzgeländer Fallnet® ASG bietet den Vorteil, dass es alle auf dem Dach tätigen Personen schützt, ohne dass diese dazu besondere Maßnahmen ergreifen müssten. Das filigrane Seitenschutzsystem ist einfach und schnell zu montieren  – ohne hohe Punktlasten und ohne Dachdurchdringung, da eine lagesichere Begrünung für die erforderliche Auflast und Fixierung sorgt. Das durch die DEKRA geprüfte und zertifizierte Arbeitsschutzgeländer Fallnet® ASG bietet als Kollektivschutzmaßnahme somit lebensrettende Sicherheit.

Flachdächer werden immer häufiger auch zum Arbeitsplatz. Seien es die ein oder zwei Wartungsgänge pro Jahr bei einer Dachbegrünung (übrigens nicht mehr als beim Kiesdach) oder sei es der Wartungsaufwand für Lüftungs-, Klima- und Photovoltaikanlagen. Solche Anlagen sind auf Flachdächern nämlich auch immer häufiger anzutreffen und gerade in diesem Bereich sind nicht immer dachaffine Monteure tätig.  

Solange in der Bauphase eines Gebäudes ein Fassadengerüst alle Arbeiten absichert, ist das wunderbar. Doch ist dieses Baugerüst einmal abgebaut, sind für alle erwähnten späteren Arbeiten auf dem Dach (Wartung, Neuinstallationen) Absturzsicherungsmaßnahmen zu treffen. Der Bauherr und (ggf. spätere) Eigentümer ist in der Pflicht und für die Einhaltung aller Vorschriften zum Arbeitsschutz auf dem Dach verantwortlich.

Die im Bereich Arbeitsschutz Tätigen sind sich längst einig, eine kollektive Absturzsicherung ist sinnvoller als persönliche Schutzmaßnahmen, da ihre Schutzwirkung nicht von der – richtigen – Anwendung abhängig ist. Leider werden bisher viele „PSAgA“, also persönliche Schutzausrüstungen gegen Absturz nicht benutzt, da sie für die zu sichernde Person lästig sind und die eigentlichen Arbeiten behindern. Also ist aus Sicht des Arbeitsschutzes ein Schutzgeländer sinnvoller, da es alle „zwangsweise“ schützt, ohne den Bewegungsspielraum einzuschränken.

Die ZinCo-Neuentwicklung Fallnet® ASG erfüllt nun als kollektives Seitenschutzsystem für temporäre Arbeiten alle Anforderungen nach EN 13374 Klasse A und ist von der DEKRA zertifiziert. Selbstverständlich erfüllt es auch die Empfehlungen der ARGEBAU und DGUV.

Vorteile im Überblick

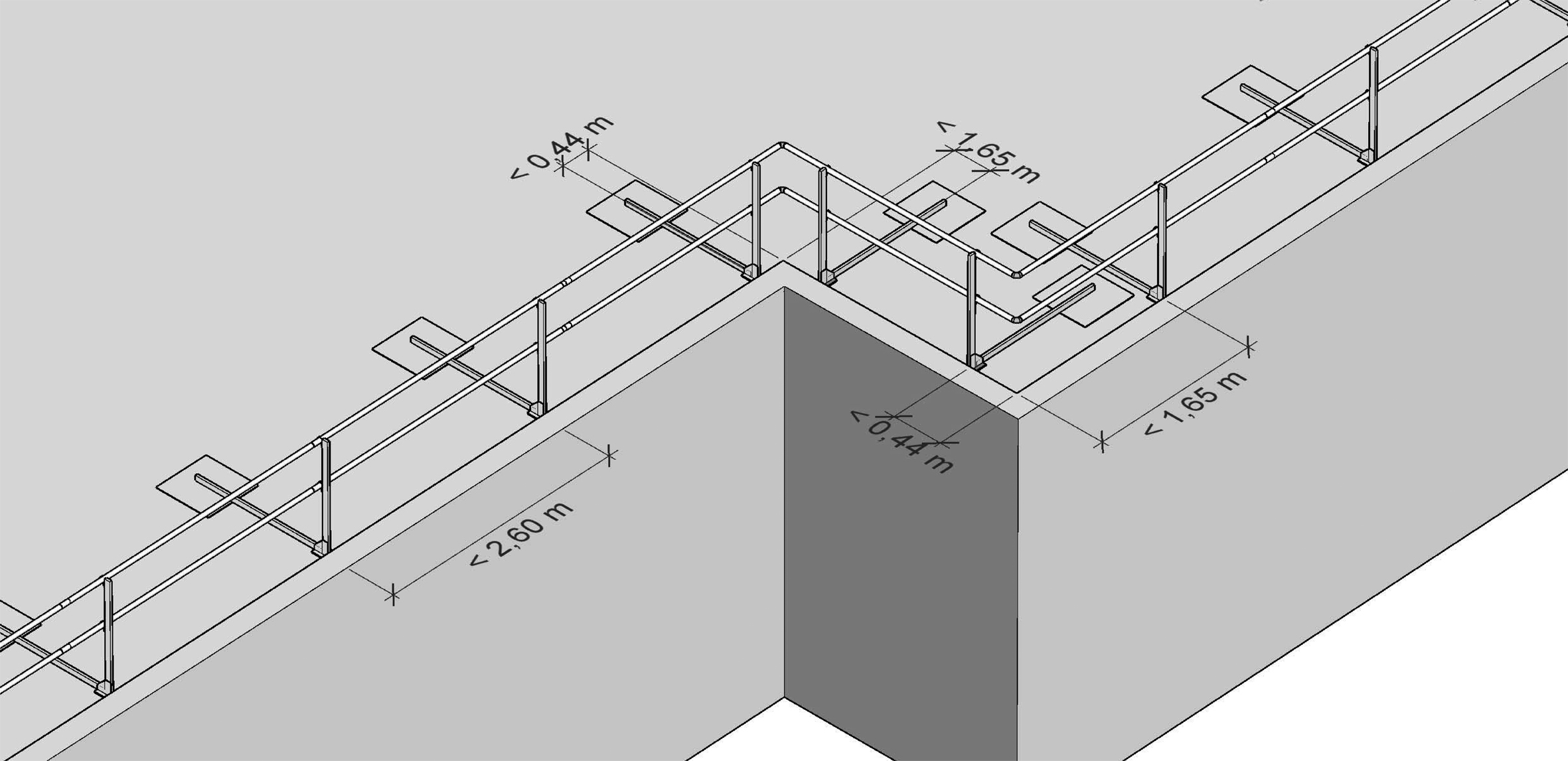
Das Arbeitsschutzgeländer Fallnet® ASG aus Aluminium überzeugt durch einfache Montage, geringes Gewicht, höchste Stabilität und benötigt keinerlei Dachdurchdringung zur Fixierung. Das System ist für Dachneigungen bis 5° einsetzbar und zwar unabhängig vom Untergrund. Kleine Unebenheiten können dank Höhenverstellbarkeit der Pfosten ausgeglichen werden. Durch seine wenigen Bauteile, die schnelle Montage und die frei einstellbare hohe Spannweite von bis zu 2,60 Meter zwischen den Geländerpfosten ist es äußerst variabel. Gleichzeitig ermöglicht es auch eine wirtschaftliche Lösung für lange Strecken und Großprojekte. Besonderer Vorteil des Arbeitsschutzgeländers Fallnet® ASG ist die Möglichkeit, das Geländer senkrecht oder in einem Winkel von 67,5 ° geneigt zu montieren, ohne die vorgeschriebene Mindestgeländerhöhe von 1,00 Meter zu unterschreiten. Durch diese Schrägstellung entsteht ein optisch gefälliger Dachabschluss. Je nach Blickwinkel ist das Geländer dadurch von unten sogar unsichtbar – was mancher Architekt als Pluspunkt für die Ästhethik des Gebäudes empfinden wird.

Blitzschnelle Montage

Entwickelt und praxiserprobt wurde das Arbeitsschutzgeländer Fallnet® ASG mit erfahrenen Handwerkern. Einfache Handhabung ist hier ein wesentliches Prinzip. So ist das gesamte System mit nur einem Werkzeug mittels Akkuschrauber montierbar – Schritt für Schritt:
Zunächst werden die Pfostenmodule der Geländerkonstruktion im Abstand von maximal 2,60 Meter auf einer Schutzmatte ausgelegt. Dann wird der bereits vormontierte Geländerpfosten lediglich noch nach oben geklappt und in der gewünschten Pfostenstellung von 90° beziehungsweise 67,5° Neigung fixiert. Im Anschluss können die Pfosten bereits mit den Geländerholmen und den Zwischenholmen bestückt werden. Dazu werden diese mittels integrierten Stoßverbinders ineinandergesteckt und mit Bohrschrauben fixiert. Auf die gleiche Weise werden die flexiblen Eckverbindungen montiert, welche das Geländer im Bedarfsfall über Eck führen. Die Geländerpfosten sind direkt an die Attika (Attikahöhe mindestens 50 mm) zu schieben. Beträgt der Abstand vom Zwischenholm zur Attika mehr als 470 mm, sind Bordbretter zu montieren.

Erforderliche Auflast

Ist das Arbeitsschutzgeländer Fallnet® ASG aufgebaut, folgt seine Ballastierung durch die Aufbringung des Dachbegrünungssystems. Dränage-, Substrat- und Pflanzschicht kommen auf den lastverteilenden Kunststoffplatten der Pfostenausleger zu liegen und sorgen so für die erforderliche Auflast. Dabei ist das Gewicht einer „normalen“ Extensivbegrünung in der Regel ausreichend. Bei einer Dachneigung von 0° bis 2° sind 80 kg/m² Trockengewicht zu beachten und bei einer Dachneigung von 2° bis 5° sind 100 kg/m² Trockengewicht der ZinCo-Systemerde bzw. des Dachbegrünungssubstrats einzuhalten. Diese Mindestauflast der Substratschicht gewährleistet die Lagestabilität des Fallnet® ASG und ist daher regelmäßig zu überprüfen. Auf diese Weise ist nun ein Arbeitsschutzgeländer auf dem Dach integriert, welches ohne Dachdurchdringung auskommt und damit entscheidende bautechnische Vorteile bringt.

Schlüssel zum Erfolg

Einfach in der Ausführung und einfach in der Handhabung ist das Arbeitsschutzgeländer Fallnet® ASG.  Und genau in dieser Einfachheit liegt auch der Schlüssel zum Erfolg. Das bestätigt die Praxis immer wieder und genau aus diesem Grunde führt der Trend hin zum Kollektivschutz, der jederzeit und jedermann auf dem Dach vor Absturz schützt und damit einfach Leben rettet.

Autor:
Dipl.-Ing. (FH) Martin Holland, Leiter Anwendungstechnik ZinCo GmbH

 

Ansprechpartner:

ZinCo GmbH
Telefon: +49 (7022) 6003-0
Fax: +49 (7022) 6003-100

Über Zinco GmbH: Die ZinCo GmbH bietet ausgereifte und dauerhaft sichere Systeme zur Dachbegrünung, zur Kombination der Dachbegrünung mit Solartechnik und Systeme zur Absturzsicherung.

Datei-Anlagen:
Pfeil zurück zur Übersicht