Pfeil zurück zur Übersicht

Optimale bauphysikalische Performance

Studie belegt: Problemlose Belüftung und Entwässerung der Schüco Fassadensysteme FWS 50, FWS 60 und FWS 35 PD
Fassade FWS 35.PD.SI von Schüco / Bildnachweis: Schüco International KG
Fassade FWS 35.PD.SI von Schüco / Bildnachweis: Schüco International KG

(pressebox) (Bielefeld, 05.12.2016) Die ästhetischen Vorzüge von Pfosten-Riegel-Fassaden gehen einher mit der Notwendigkeit nach einer ausreichenden Belüftung und Entwässerung der Falzräume. Eine Studie des Fraunhofer Instituts für Bauphysik belegt das problemlose bauphysikalische Verhalten der Schüco Systeme FWS 50, FWS 60 und FWS 35 PD in allen Wärmedämmvarianten.

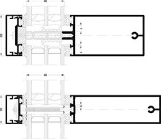
Gläserne Fassaden aus Pfosten-Riegel-Konstruktionen stehen bei großen Architekturprojekten seit Jahrzehnten hoch im Kurs. Architekten schätzen nicht nur die schmalen Ansichtsbreiten der Systeme und das daraus resultierende transparente Erscheinungsbild der Gebäudehülle, sondern auch die niedrigen U-Werte der Rahmenquerschnitte, die den Einsatz der Systeme auch in energieeffizienten Gebäuden erlauben. Um dies zu gewährleisten, werden die freien Luftbereiche im Profilinneren, die sogenannten Falzräume, wärmegedämmt. Entscheidend ist dabei ein möglichst gutes bauphysikalisches Verhalten der gesamten Systemkonstruktion. Das heißt: Die Falzräume bilden die Zone, in der unter anderem die Belüftung und Entwässerung der Profile stattfinden.

Forschungsprojekt Falzgrundbelüftung

Deshalb standen sowohl das System FW 50+.HI mit 50 mm Ansichtsbreite als auch die Fassadenneuentwicklung FWS 35 PD.SI mit einer Ansichtsbreite von 35 mm beim Fraunhofer Institut für Bauphysik in Stuttgart im Rahmen eines Forschungsprojektes auf dem Prüfstand. Beide Systeme (50 mm/Gesamtbelüftung, 50 mm/feldweise Belüftung und 35 mm/Gesamtbelüftung) wurden hinsichtlich ihrer Performance in den Bereichen Belüftung und Entwässerung untersucht. Um möglichst breit gestreutes Know-how im Projekt zu vereinen, konnten die Semcoglas Holding GmbH aus Westerstede und die Kömmerling Chemische Fabrik GmbH aus Pirmasens als weitere Forschungspartner gewonnen werden. So gelang es, die mehrteilig ausgebildeten, neun Quadratmeter großen Prüfelemente mit insgesamt neun verschiedenen Mehrscheiben-Isolierglasaufbauten (MIG) auszustatten. Darunter befanden sich sieben Dreifach-MIG im Scheibenaufbau 6/16/4/16/4 und den unterschiedlichen Abstandhalter/Sekundärdichtstoff-Varianten TPS/Polysulfid, Kunststoff/Polysulfid, Kunststoff/Polyurethan, Kunststoff/Silikon und Edelstahl/Polysulfid. Außerdem kamen zwei Zweifach-MIG in der konstruktiv angepassten Fassadenhälfte mit dem Aufbau 6/16/4 und TPS/Polysulfid und Kunststoff/Polysulfid im Abstandhalterbereich zum Einsatz.

Die Ergebnisse können sich sehen lassen: Die durchgeführten Untersuchungen zum Belüftungs- und Entwässerungsverhalten der Schüco Fassadensysteme FW 50+.HI und FWS 35 PD belegen deren optimale bauphysikalische Performance. Zwar kann nach starker Schlagregenbelastung Wasser in die Profilkonstruktion eindringen; allerdings trocknen die feuchten Falzräume je nach System und Verglasungsbautiefe in wenigen Tagen wieder ab. Die Temperatur an der äußeren Glaskante passt sich sehr schnell an und die innere Oberflächentemperatur der sichtbaren Glasfläche liegt beim Dreifach-MIG bei allen Systemen über der Taupunkttemperatur. Schließlich zeigt die Auswertung der absoluten Feuchtemengen im Falzraum, dass die gesamtbelüfteten Systeme etwas schneller abtrocknen als das feldweise belüftete System. In allen Fällen bleibt der Glasrand der Mehrscheiben-Isolierglaseinheit langfristig geschützt.

Fazit

Die getesteten Schüco Systeme FW 50+.HI und FWS 35 PD.SI werden ausreichend belüftet und entwässert. Dieses Ergebnis lässt sich aufgrund der umfangreichen Untersuchungen auch auf die Systeme FWS 50 und FWS 60 in allen Wärmedämmvarianten übertragen. Folglich gilt: Die Falzraumumgebung bleibt bei diesen Konstruktionen nicht dauerhaft feucht. Sowohl durch Schlagregen eingedrungenes Wasser als auch durch Kondensat entstandenes Wasser trocknen nach einer für das MIG nicht funktionsbeeinträchtigten Zeit wieder ab. Die Systeme punkten daher nicht nur mit Ihren schmalen Ansichtsbreiten, sondern überzeugen darüber hinaus durch ihr problemloses bauphysikalisches Verhalten.

Informationen zu den Produkten finden Interessenten unter www.schueco.de/fws

Ansprechpartner:

Frau Ulrike Krüger
Pressestelle
Telefon: +49 (521) 783-803
Fax: +49 (521) 783-950803
Zuständigkeitsbereich: Referentin Public Relations

Über SCHÜCO International KG: Mit seinem weltweiten Netzwerk - bestehend aus Metallbau-, Kunststoff- und Elektropartnern sowie Architekten, Planern und Investoren - realisiert Schüco nachhaltige Gebäudehüllen, die im Einklang mit Natur und Technik den Menschen mit seinen Bedürfnissen in den Vordergrund stellen. Fenster-, Türen- und Fassadenlösungen aus Metall und Kunststoff von Schüco erfüllen höchste Ansprüche an Design, Komfort und Sicherheit. Gleichzeitig werden durch Energieeffizienz CO2-Emissionen reduziert und so die natürlichen Ressourcen geschont. Das Unternehmen liefert zielgruppengerechte Produkte für Neubau und Modernisierung, die den individuellen Anforderungen der Nutzer in allen Klimazonen gerecht werden. In jeder Phase des Bauprozesses werden alle Beteiligten mit einem umfassenden Serviceangebot unterstützt. Schüco ist mit 4.630 Mitarbeitern und 12.000 Partnerunternehmen in mehr als 80 Ländern aktiv und hat in 2015 einen Jahresumsatz von 1,430 Milliarden Euro erwirtschaftet. Weitere Informationen unter www.schueco.de

Datei-Anlagen:
Pfeil zurück zur Übersicht